取り扱い店舗: 【フォステール 奈良西大寺店】
■南面に面した日当りの良いお家です■設備充実のオール電化住宅■ウォークインクローゼットや食器洗乾燥機が嬉しいですね
登録日/2024年06月11日 更新日/2026年05月02日
お問い合わせ番号/ 17775
中古戸建
5,180万円
(価格改定日:2025-08-25)
旧:5,398万円
(価格公表日:2024-06-11)
奈良県奈良市北登美ヶ丘6丁目- 建物構造/階建
- 木造/2階建
- 築年月
- 【令和6年】2024年03月 / 築2年
- 最寄駅
-
- 近鉄けいはんな線
- 学研奈良登美ヶ丘駅徒歩23分
- バス乗車15分
- 東登美ヶ丘6丁目東バス停
- 停歩5分
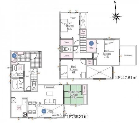
- 間取り/面積
-
- 間取り
- 4LDK
- 土地面積
- 204.15m2 / 61.75坪
- 延床面積
- 103.92m2 / 31.43坪
- 延床面積1F
- -
- 延床面積2F
- -
新価格
この物件の主な特徴
平坦地 閑静な住宅地 土地広さ 50坪以上 南側道路面す 前道6m以上 階建 2階建 日当り良好 通風良好 LDK広さ 18帖以上 和室 オール電化 上水道 公営 汚水 下水道 フローリング 複層ガラス 駐車可能台数 2台可 24時間換気システム 全居室収納 クローゼット ウォークインクローゼット シューズボックス 床下収納 システムキッチン カウンターキッチン IHクッキングヒーター パントリー 食器洗乾燥機 食器乾燥機 独立洗面台 シャンプードレッサー バス広さ 1坪以上 オートバス 追い焚き 浴室に窓 浴室暖房 浴室乾燥機 トイレ2ヶ所 温水洗浄便座 バルコニー バルコニー有 ワイドバルコニー 南面バルコニー 低炭素住宅 省エネルギー対策 太陽光発電システム 省エネ給湯器 TVインターホン 隣家との間隔が大きい 周辺交通量少なめ ※設備名をクリックで対象の設備の物件一覧を絞り込みローンシミュレーション
- 物件価格
- 5,180万円
- 金利
- 返済期間
-
年
※物件によってはローン年数が変わる場合がございます。
- 頭金
-
万円
※半角数字でご入力ください。
- ボーナス併用支払い
-
併用する
5180.00万円のうちボーナス返済分
万円
※半角数字でご入力ください。
- 月割返済額
- ボーナス支払い額
(年2回) - 学校区
-
- 小学校区
- 東登美ヶ丘小学校 距離:1600m
- 中学校区
- 登美ヶ丘北中学校 距離:1500m
- 間取り詳細
-
階数 区分 広さ - 駐車場
-
- 駐車可能台数
- 有2台
- 駐車場所
- -
- 分譲駐車場
- -
- 駐車料金
- -
- 税
- -
- タイプ
- カースペース
- 公共設備
-
- ガス
- -
- 水道
- 公営水道
- 汚水
- 公共下水
- 雑排水
- 公共下水
- 接道状況 他
-
- 向
- 二方
- 角地
- 角地
- 私道
-
- 私道
- -
- 持分
- -
- 面積(区分)
- -
- 面積
- -
- 面積(単位)
- -
- セットバック面積
-
- 状態
- -
- 幅
- -
- 面積
- -
- 現況
- 未入居
- 引渡時期
- 即引き渡し可
--- - 地目
- 宅地
- 地勢
- -
- 用途地域
- 第一種低層住居専用地域
- - 建ぺい/容積率
- 40%/60%
- 都市計画
- 市街化区域
- 建築許可理由
- -
- 建築確認番号
- -
- リフォーム
- -
-
キッチン:-
浴槽:-
トイレ:-
壁:-
床:-
全室:-
その他:-
洗面所:-
給湯器:-
給排水管:-
内装全面:-
外壁:-
屋根:-
その他:- - リノベーション
- -
- - 土地権利
-
- 権利
- 所有権
- 備考
- -
- 権利金
- -
- 再建築
- -
- 国土法届出
- 不要
- その他制限事項
- -
備考:- - フラット利用
- -
- 手付金保証
- -
- 町会費
- --
- リボーン21
- -
- 備考
- -
- 取引態様
- 先物
※金利につきましては各金融機関の審査金利及び融資金利により異なります。
実際の返済額は結果と異なりますので、資産計画の目安としてご利用ください。
詳しいお問い合わせは、こちらよりご相談ください。
センチュリー21ジャパン加盟店
(公社)全国宅地建物取引業保証協会
不動産政治連盟
AIG損害保険株式会社
中小企業同友会
(公社)全国宅地建物取引業保証協会
不動産政治連盟
AIG損害保険株式会社
中小企業同友会


